ZEH水準省エネ住宅の建売住宅
弘前市松原東に高断熱・高気密化と高効率設備住宅が登場‼
「今どき」企画住宅
-ガレージ付き狭小住宅-
今こそ無理なく建てて、ゆとりを楽しむ暮らし!
お手頃価格で「自分仕様の家」
間取りはそのまま。
仕様はあなた好みにカスタマイズOK!
お手頃価格で叶う!
「ゆとりの暮らし」新しい暮らしを叶えよう!🏠✨
資料でご案内します!
今ならお得な特典ついています!
お気軽にお問い合わせください。
| ◆建築場所 | 青森県弘前市大字松原東3丁目12-32 |
| ◆価格 | 1,980万円 |
| ◆交通 | 弘南バス 松原東3丁目(約260m 徒歩約4分) |
| ◆土地面積 | 93.89㎡(28.4坪) |
| ◆建物面積 | 92.08㎡(27.8坪) |
| ◆建築確認番号 | R06確認建セ弘弘前第0140号 |
| ◆地目 | 宅地 |
| ◆区域区分 | 第一種中高層住居専用地域 |
| ◆建ぺい率/容積率 | 60% / 160% |
| ◆通学区 | 松原小学校(約600m徒歩約8分)南中学校(約2㎞徒歩約30分) |
| 《備考》 | 〇コープあおもり松原店(約300m徒歩約4分) |
| 〇コインランドリーさくら(約350m徒歩約5分) | |
| 〇こいし内科クリニック(約400m徒歩約6分) |
| 〇弘前松原郵便局(約500m徒歩約7分) | |
| 〇セブンイレブン弘前松原店(約650m徒歩約9分) | |
建築計画中のため、見学はまだできません。
相談等は松原モデルハウスか
事務所にて行います。
ギャラリー
GALLERY
-
-
1階間取図 -
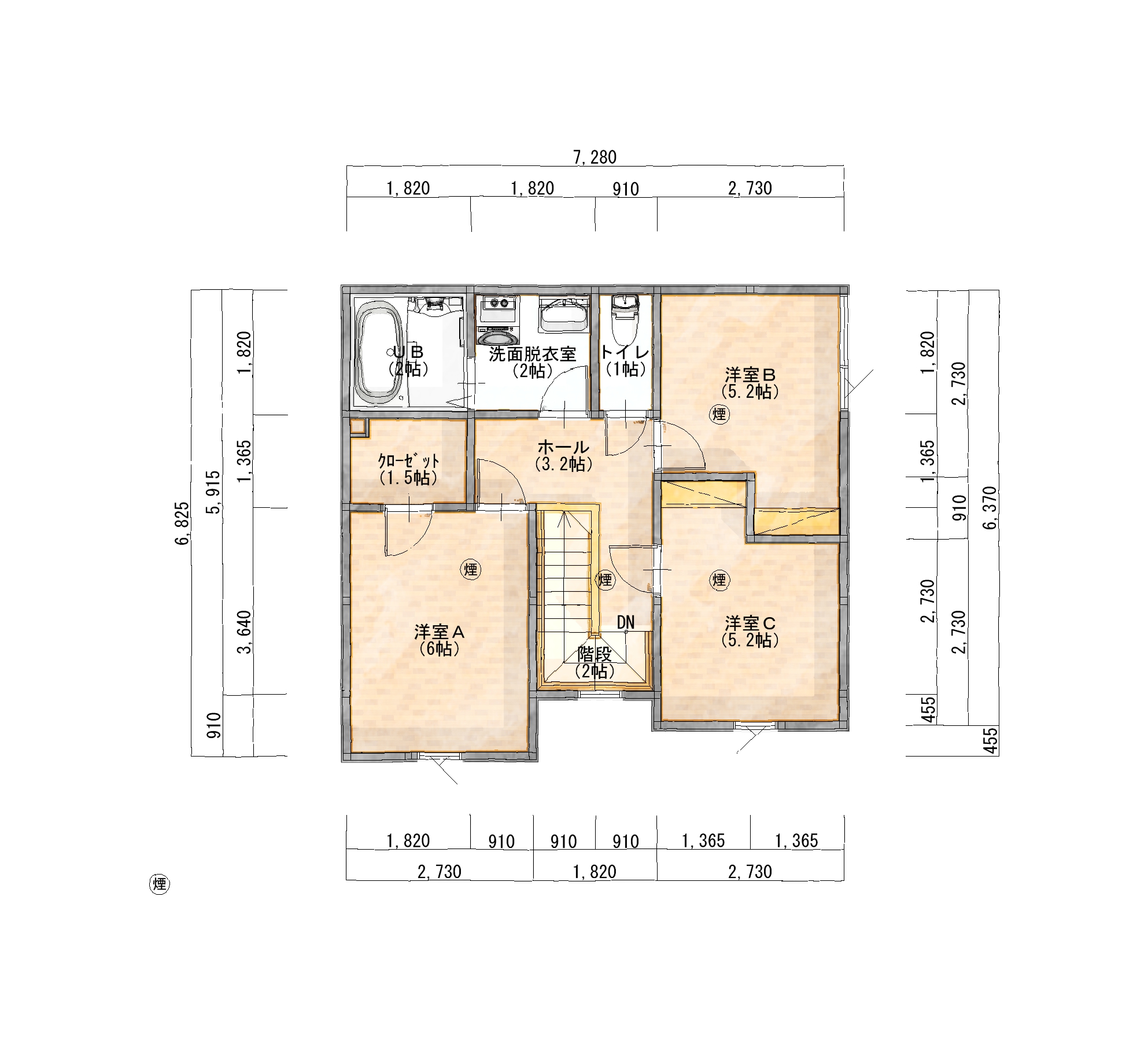
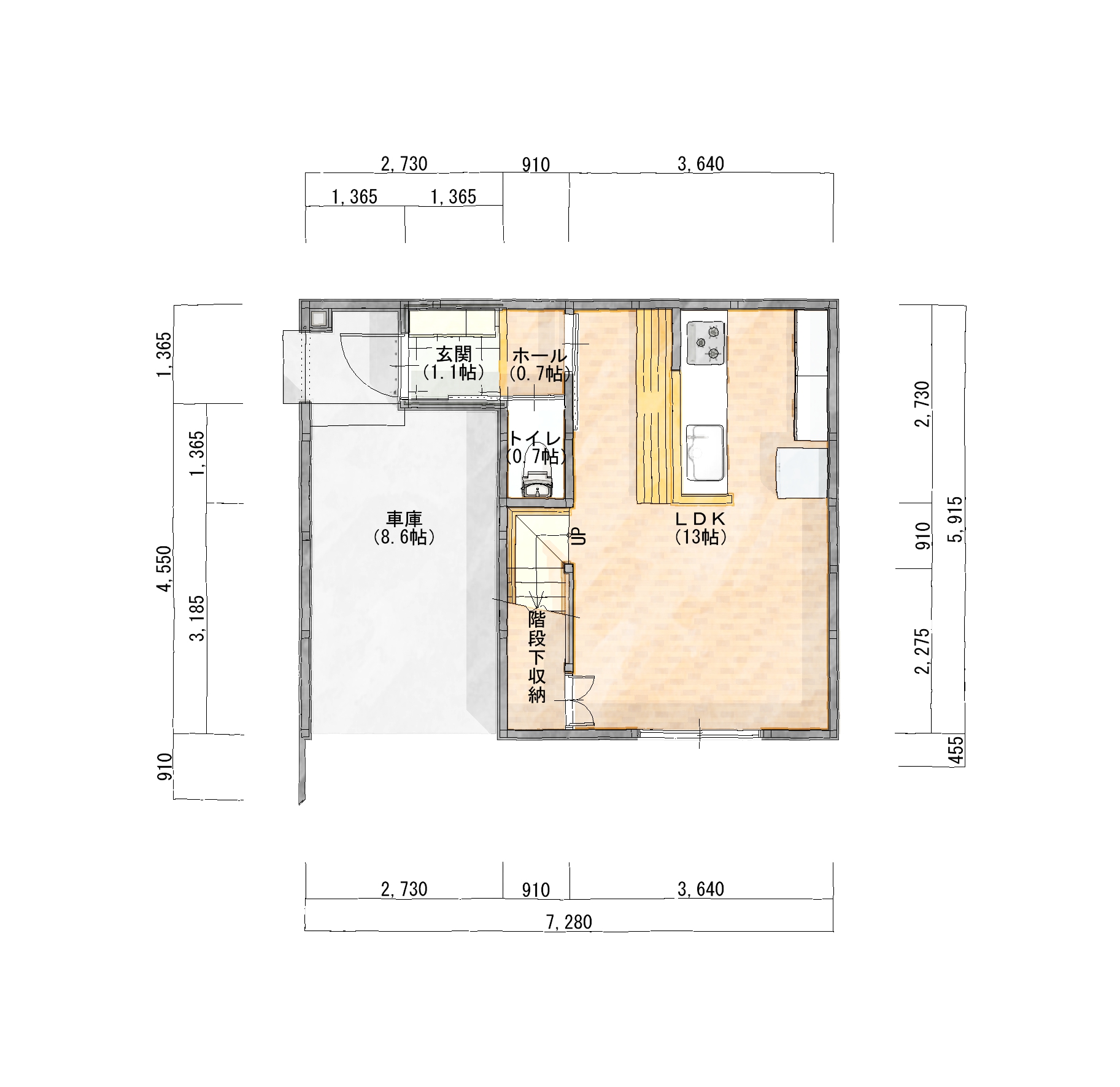
2階間取図 -
建築場所の地図です。 -
-
-
-
-
