ZEH水準省エネ住宅の建売住宅
弘前市松原東に高断熱・高気密化と高効率設備住宅が登場‼
📢特典付き企画住宅!
弘前松原東に3棟限定企画住宅🏠
-家事動線が充実した快適な4LDK住宅-
今こそ無理なく建てて、ゆとりを楽しむ暮らし!
お手頃価格で「自分仕様の家」
間取りはそのまま。
仕様はあなた好みにカスタマイズOK!
お手頃価格で叶う!
「ゆとりの暮らし」新しい暮らしを叶えよう!🏠✨
資料でご案内します!
今ならお得な特典ついています!
お気軽にお問い合わせください。
| ◆建築場所 | 青森県弘前市大字松原東4丁目16-6 |
| ◆価格 | 2,680万円 |
| ◆交通 | 弘南バス 上松原駅(約550m 徒歩約8分) |
| ◆土地面積 | 179.83㎡(54.4坪) |
| ◆建物面積 | 104.53㎡(31.5坪) |
| ◆建築確認番号 | R06確認建セ弘弘前第0141号 |
| ◆地目 | 宅地 |
| ◆区域区分 | 第一種低層住居専用地域 |
| ◆建ぺい率/容積率 | 50% / 80% |
| ◆通学区 | 松原小学校(約700m徒歩約10分)南中学校(約2㎞徒歩約30分) |
| 《備考》 | 〇ひまわり保育園(約400m徒歩約6分) |
| 〇コインランドリーさくら(約500m徒歩約7分) | |
| 〇コープあおもり松原店(約450m徒歩約6分) |
| 〇こいし内科クリニック(約650m徒歩約9分) | |
| 〇弘前松原郵便局(約750m徒歩約11分) | |
| ◆御成約特典 |
2台用カーポート |
建築計画中のため、見学はまだできません。
相談等は松原モデルハウスか、
事務所にて行います。
ギャラリー
GALLERY
-
-
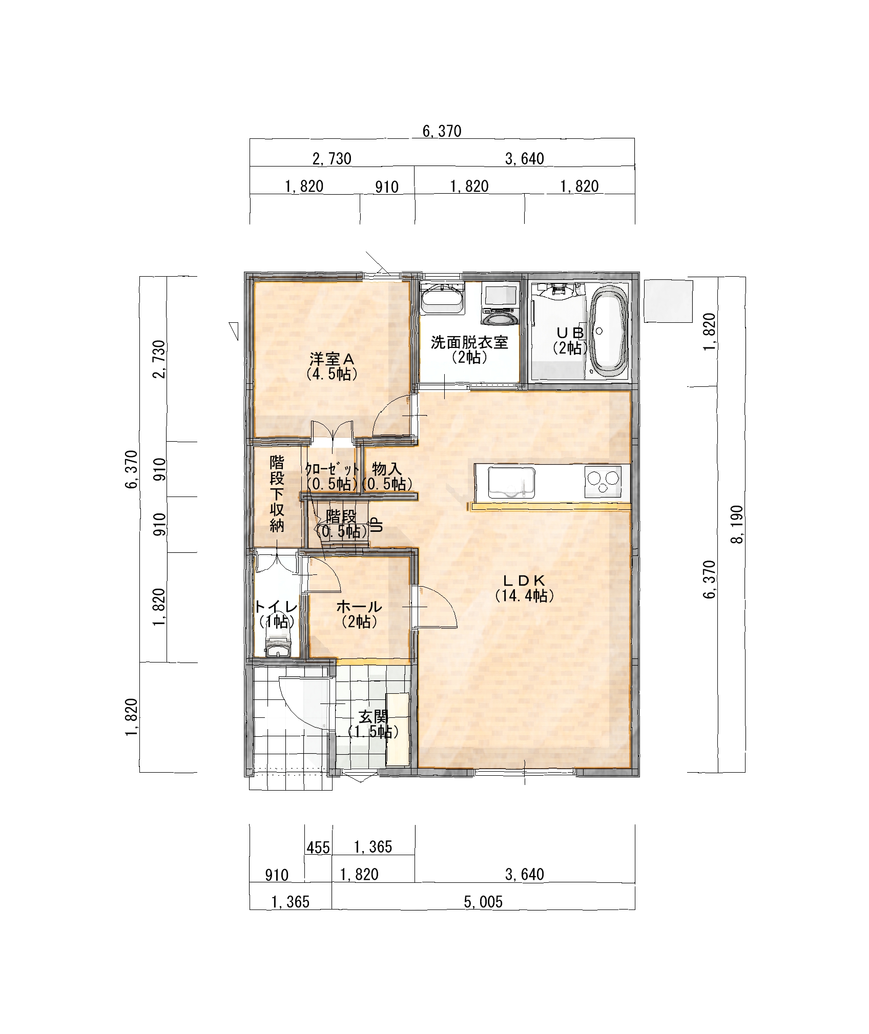
1階間取図 -
2階間取図 -
建築場所の地図です。 -
-
-
-
-
-
お気軽にご相談ください!
